НА ГЛАВНУЮ
 Для поддержания свежего и чистого воздуха, а также для сохранения тепловой энергии внутри дома, рекомендуем использовать систему рекуперации воздуха. Рекуператор – это устройство, которое предназначено для передачи тепловой энергии от вытяжного выбрасываемого воздуха к приточному воздуху, подаваемому в помещение. В данном случае под тепловой энергией понимается как тепловая, так и холодильная, то есть вытяжной воздух может отдавать приточному как своё тепло, так и свой холод, соответственно, нагревая или охлаждая его. Существует несколько разновидностей рекуператоров. Компании, специализирующиеся на производстве и продаже данного оборудования, помогут подобрать оптимальный вид рекуператора, исходя из параметров дома.
 Сборка и монтаж дома из нанокомпозитных панелей осуществляется бригадой из 4-6 человек вручную, без вспомогательного оборудования и не требует дополнительных работ на строительной площадке. Специально разработанные узлы соединений позволяют производить монтаж без специальной подготовки. Все конструктивные элементы дома (стены, пол, крыша) собираются из нанокомпозитных полиуретановых панелей. По завершении сборки места соединений замоноличиваются специально разработанным полиуретановым составом по технологии «Кокон». Благодаря технологии «Кокон» конструкция дома полностью изолируется от внешнего воздействия температур, обеспечивает высокую теплоизоляцию дома без тепловых мостов (мостиков холода), что позволяет при использовании специального оборудования добиться показателей пассивного дома с нулевым потреблением энергии. Собранная конструкция дома имеет малый вес, тем самым минимизируя нагрузку на грунт, что позволяет использовать любой фундамент. При желании возможно выстраивать дом в различных образах и формах. Это может быть дом квадратной формы, прямоугольной формы, с вариантом множества внутренних и внешних углов. Также конструктивная особенность позволяет уже построенный дом преобразовать в больший размер, тем самым увеличив полезную площадь.
Сборка и монтаж дома из нанокомпозитных панелей осуществляется бригадой из 4-6 человек вручную, без вспомогательного оборудования и не требует дополнительных работ на строительной площадке. Специально разработанные узлы соединений позволяют производить монтаж без специальной подготовки. Все конструктивные элементы дома (стены, пол, крыша) собираются из нанокомпозитных полиуретановых панелей. По завершении сборки места соединений замоноличиваются специально разработанным полиуретановым составом по технологии «Кокон». Благодаря технологии «Кокон» конструкция дома полностью изолируется от внешнего воздействия температур, обеспечивает высокую теплоизоляцию дома без тепловых мостов (мостиков холода), что позволяет при использовании специального оборудования добиться показателей пассивного дома с нулевым потреблением энергии. Собранная конструкция дома имеет малый вес, тем самым минимизируя нагрузку на грунт, что позволяет использовать любой фундамент. При желании возможно выстраивать дом в различных образах и формах. Это может быть дом квадратной формы, прямоугольной формы, с вариантом множества внутренних и внешних углов. Также конструктивная особенность позволяет уже построенный дом преобразовать в больший размер, тем самым увеличив полезную площадь.
НАНОДОМ СОБРАН НА iСТЕНАХ
НАНОДОМ
СОБРАН НА
iСТЕНАХ
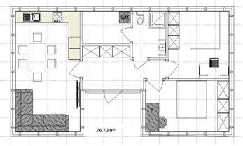
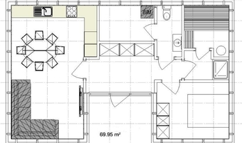
Вот несколько перспективных проектов нанодомов, которые будут сочетать в себе практичность, комфорт, энергоэффективность, надежность, современную архитектуру и дизайн. Например, один из вариантов — это дом общей площадью 76.7 квадратных метров, включающий в себя просторную кухню-гостиную, две спальни, холл, большой санузел и техническое помещение под котельную, прачечную и т.д. Высота потолков 3 м.
 Мы не ограничеваемся существущими проектами и готовы разработать индивидуальный проект дома учитывая пожелания заказчика  и технические возможности места где будет проводиться строительство. 
Мы не ограничеваемся существущими проектами и готовы разработать индивидуальный проект дома учитывая пожелания заказчика  и технические возможности места где будет проводиться строительство. 
ЕСЛИ У ВАС УЖЕ ЕСТЬ СМЕТА НА СТРОИТЕЛЬСТВО ДОМА, ПРИШЛИТЕ ЕЕ НАМ, И МЫ ЗА ТЕ ЖЕ ДЕНЬГИ ПОСТРОИМ ВАМ ДОМ, КОТОРЫЙ БУДЕТ ЛУЧШЕ ПРЕДЛОЖЕННОГО, А ПО НЕКОТОРЫМ ХАРАКТЕРИСТИКАМ В РАЗЫ ЛУЧШЕ!
 Вы можете отправить свою заявку на дом или прислать смету в месенжер WhatsApp используя кнопку для быстрой связи или написать нам на почту nano@нанодом.рус
В случае, когда заказчику достаточно одной спальни, вторую можно преобразовать в сап-зону для оздоровительных процедур.
 Также немаловажным фактором применения технологии «КОКОН», о которой говорилось выше, является защита дома от проникновения газа радона. Радон — это радиоактивный газ без запаха, цвета и вкуса. Радон образуется в процессе природного радиоактивного распада урана, который присутствует во всех горных породах и почвах. Радон является одной из основных причин развития рака легких. По оценкам, радон вызывает от 3% до 14% всех случаев рака легких. Высвобождаясь из грунта в воздух, радон распадается с образованием радиоактивных частиц. Когда мы дышим, эти частицы осаждаются на клетках эпителия дыхательных путей, что чревато повреждением ДНК клеток и может привести к развитию рака легких. Полиуретан является оптимальным материалом для устройства барьера от радона.
Также немаловажным фактором применения технологии «КОКОН», о которой говорилось выше, является защита дома от проникновения газа радона. Радон — это радиоактивный газ без запаха, цвета и вкуса. Радон образуется в процессе природного радиоактивного распада урана, который присутствует во всех горных породах и почвах. Радон является одной из основных причин развития рака легких. По оценкам, радон вызывает от 3% до 14% всех случаев рака легких. Высвобождаясь из грунта в воздух, радон распадается с образованием радиоактивных частиц. Когда мы дышим, эти частицы осаждаются на клетках эпителия дыхательных путей, что чревато повреждением ДНК клеток и может привести к развитию рака легких. Полиуретан является оптимальным материалом для устройства барьера от радона.